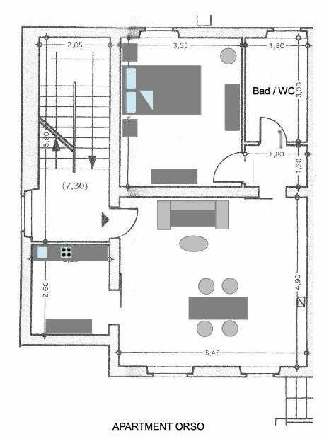
70 m² Apartment ∙ 1 bedroom ∙ 4 guests | Apartment in Montone with Pool

1 Bedroom Apartment in Montone
Privacy, only 6 spacious suites, pool, BBQ, library, private bar & restaurant -
L'ARIETE stands for peace, space and relaxation. The property in the heart of Renaissance Italy offers 6 independent spacious suites with 1 or 2 bedrooms (45-80 m² each) and fully equipped kitchens plus a private restaurant. L'Ariete is set amongst 20 acres of private land including a vineyard, with uninterrupted views towards Montone, elected one of Italy's most beautiful medieval hamlets.
An organic vegetable garden is available for our guests, a small grocery shop offers selected regional and home-made products, the restaurant is exclusively open to our guests for a typical Umbrian dinner. Belle vacanze!